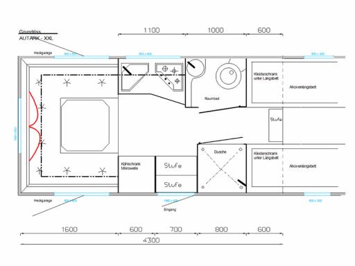
Autark runner XXL - 4x4

Mercedes Sprinter 519 CDI

Hubraum:  2.987 ccm

Kraftstoff:  100 ltr Diesel

Leistung:  140 KW

Länge:  6.950 mm

Breite:  2.300 mm

Höhe:  3.350 mm

Leergewicht:  4.360 Kg

Zuladung:  940 Kg

zGG:  5.300 Kg

Reisefertig inkl. Füllstoffe und Fahrer

Vorbehaltlich Druckfehler und Irrtümer.

Autark runner XXL - 4x4

Fahrzeuginfo

Mercedes Sprinter 519 CDI

Getriebe

Allrad zuschaltbar mit Untersetzungsgetriebe

Bauweise

GFK-Verbundplatten 40mm
vollisoliert - kältebrückenfrei - wintertauglich
Deckschichten 2mm GFK-Isolierschaum PU-RG 50 = 36mm

Sitzplätze

4

Betten

1x 2000 x 1400 mm (Heckbett-Umbau Sitzgruppe)
2x 1900 x 800 mm - 1700mm (Längsbetten im Alkoven)

Heizung

Warmwasserdieselheizung 12 KW

Boiler

20 ltr Warmwasserboiler mit Wärmetauscher

Kühlschrank

40 ltr Kompressorkühlschrank mit Gefrierfach

Frischwasser

200 ltr frostgeschützt

Abwasser

100 ltr frostgeschützt

Gas

1x 11 kg Gasflaschen für Kocher

Bordbatterie

1x 200 Ah - wartungsfrei

Energiequellen

Solar 2x 110 Wp + Trennrelais + 230V Einspeisung
+ Generator (Whisperpower)

Fenster

Seitz S4 - Doppelacrylglasfenster mit integr. Kombirollo's

Türen und Klappen

Woelcke