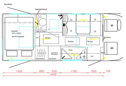
Autark runner XXL - 4x4
- Allradwohnmobile

Mercedes Sprinter 519 CDI | ||
Hubraum: 2.987 ccm | Kraftstoff: 100 ltr Diesel | Leistung: 140 KW |
Länge: 6.900 mm | Breite: 2.000 mm | Höhe: 2.850 mm |
Leergewicht: 4.125 Kg | Zuladung: 875 Kg | zGG: 5.000 Kg |
Reisefertig inkl. Füllstoffe und Fahrer Vorbehaltlich Druckfehler und Irrtümer. |
Autark runner XXL - 4x4
Fahrzeuginfo | Mercedes Sprinter 519 CDI |
Getriebe | Allrad zuschaltbar mit Untersetzungsgetriebe |
Radstand | 4.350 mm |
Bauweise | GFK-Verbundplatten 30mm |
Sitzplätze | 4 |
Betten | 1x 1920 x 1400 mm (Heckbett) |
Heizung | Truma Combi6 E -Gas -und Elektrobetriebene Gebläseumluftheizung mit Boiler 11 ltr |
Boiler | Siehe Heizung |
Kühlschrank | 142 ltr Absorberkühlschrank (12V-230V-Gas) |
Frischwasser | 200 ltr frostgeschützt |
Abwasser | 80 ltr frostgeschützt |
Gas | 44 kg Gastank unterflur + 1x 11kg Gasflasche |
Bordbatterie | 3x 120 Ah - wartungsfrei = 360 Ah |
Energiequellen | Solar 2x 110W + Trennrelais + 230V Einspeisung |
Fenster | S4 - Doppelacrylglasfenster mit integr. Kombirollo's |
Türen und Klappen | Woelcke |
|