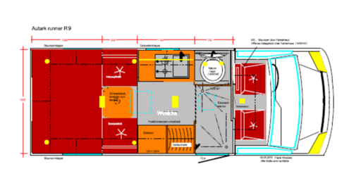
Woelcke Autark runner R9 - 2019
- Allradwohnmobile

Längs - und Querbetten, Schmutzschleuse / Raumbad | ||
Hubraum: 2.143 ccm | Kraftstoff: 93 ltr Diesel | Leistung: 120 KW |
Länge: 6.450 mm | Breite: 2.000 mm | Höhe: 2.970 mm |
Leergewicht: 3.100 Kg | Zuladung: 400 Kg | zGG: 3.500 Kg |
Reisefertig inkl. Füllstoffe und Fahrer Vorbehaltlich Druckfehler und Irrtümer. |
Basisfahrzeug: MB Sprinter 4x4 (416CDI)
- Allradantrieb zuschaltbar mit Untersetzungsgetriebe
- Bereifung: 5 x BF-Goodrich 245/75R16-All-Terrain KO2, M+S
- 6-Gang Schaltgetriebe
- zulässiges Gesamtgewicht von 4100 kg möglich
- Tempomat
- Spurhalteassistent
- Bremsassistent
- Klimaanlage "Tempmatik"
- Radio-Doppel-DIN, Bluetooth, Navigation, Rückfahrkamera
- Kraftstofffilter mit Wasserabscheider
- Trenntoilette
- Moskitoschutz Plissee an Eingangstüre
- Wechselrichter 12V - 230V - 1700W - Sinus
- usw...
Woelcke Autark runner R9 - 2019
Fahrzeuginfo | Längs - und Querbetten, Schmutzschleuse / Raumbad |
Getriebe | 6-Gang Schaltgetriebe |
Bauweise | 30 mm GFK-Verbundplatten - vollisoliert - kältebrückenfrei |
Sitzplätze | 2 |
Betten | Längsbetten im Heck |
Heizung | Truma Combi 4E CP plus (Gas + 230V) Gebläseumluftheizung mit Boiler 11 ltr |
Boiler | ~ 11 ltr Warmwasserboiler in Heizung integriert |
Kühlschrank | 75 / 19 ltr Kühl-Gefrierschrankkombination (Kissmann Big Cruise T) |
Frischwasser | ~ 70 / 120 ltr - frostgeschützt |
Abwasser | ~ 80 ltr unterflur |
Gas | 2 x 11 kg (zum Kochen und Heizen) |
Bordbatterie | 1 x Lithium 150Ah - wartungsfrei |
Energiequellen | 2 x Solar 100Wp + Ladebooster 12V / 50A |
Fenster | Seitz S4 - Doppelacrylglasfenster mit integr. Kombirollo`s |
Türen und Klappen | Woelcke |
|