Woelcke Autark runner XL 01 2025
- Allradwohnmobile
| Mercedes Benz Sprinter 519CDI | ||
Hubraum: 2.000 ccm | Kraftstoff: ~160L Diesel | Leistung: 140KW |
Länge: 6.570 mm | Breite: 2.160 mm | Höhe: 3.590 mm |
Leergewicht: 4.625 Kg | Zuladung: 875 Kg | zGG: 5.500 Kg |
| Reisefertig inkl. Füllstoffe und Fahrer Vorbehaltlich Druckfehler und Irrtümer. |
Basisfahrzeug Mercedes Benz Sprinter 519CDI
- Radstand: 3.650 mm
- Allradantrieb 4x4 mit Torque-on-Demand
- Automatikgetriebe 9G - Tronic
- Offroad Betrieb - Bergabfahrassistent
- Klimaanlage geregelt
- Bereifung 7 x 215/85R16
- Zusatzluftfeder an Hinterachse
- Wechselrichter 12V-230V - 3.500W Dauer
- Rückfahrkamera nah/fern
- 4x Zusatzscheinwerfer LED
- Dachklimaanlage für Wohnkabine
- Waschmaschine
- Unterflurstaufächer
- Fahrerhausausschnitt klappbar
- Markise
- Toilette Clesana mit sep. Urintank
- usw...
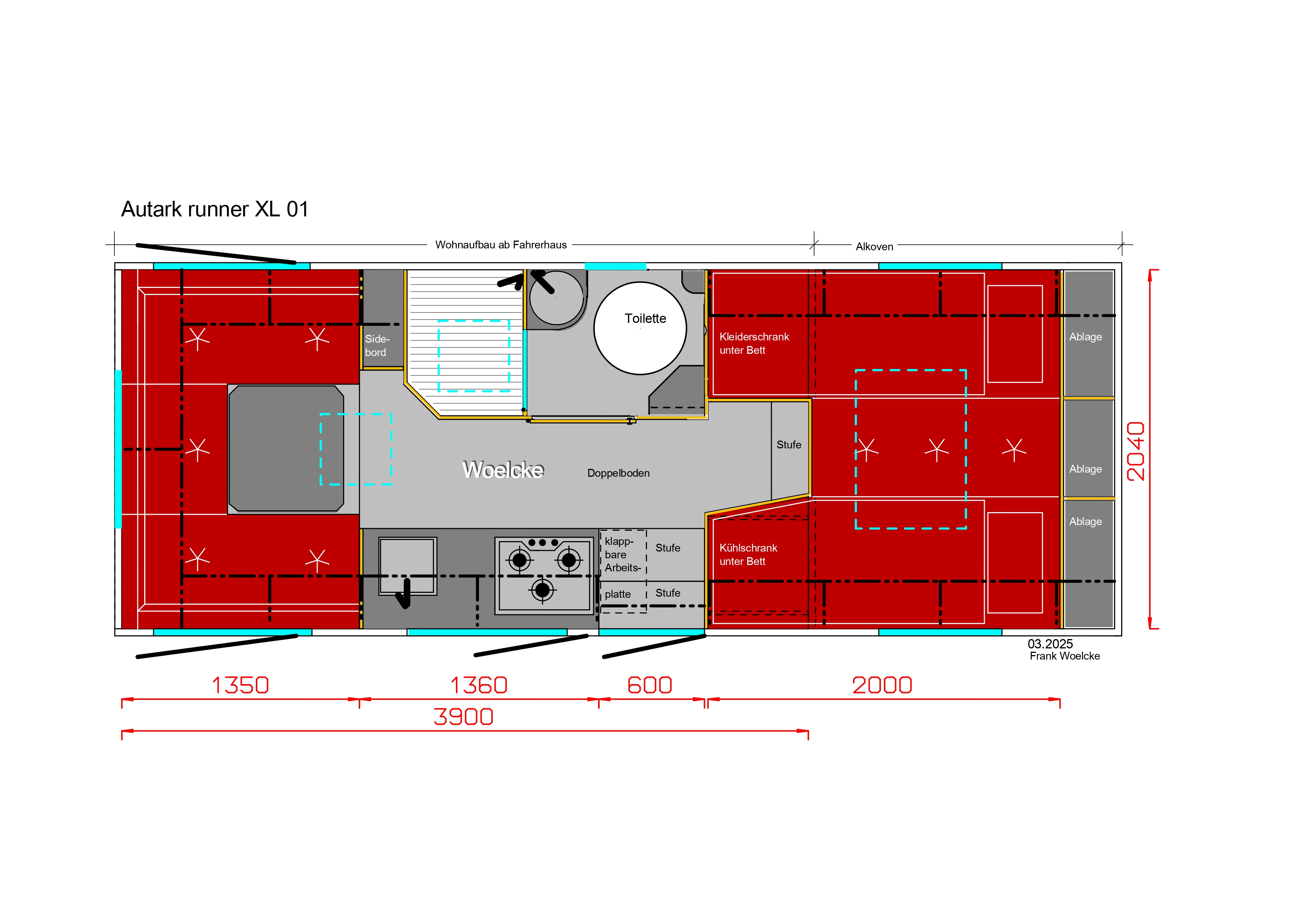
Woelcke Autark runner XL 01 2025
Fahrzeuginfo | Mercedes Benz Sprinter 519CDI |
Innenmaße | L = 3.900mm + Alkoven x B = 2.040mm x H = 2.435mm |
Bauweise | GFK-Verbundplatten - vollisoliert - kältebrückenfrei - 40mm |
Sitzplätze | 2 |
Betten | Alkovenlängsbetten |
Heizung | Heiz. - Boil. - Kombination 6KW (Diesel - und 230V betrieben) Gebläseumluftheizung mit Boiler |
Boiler | 10L in Heizung integriert |
Kühlschrank | Kompressor Kühl - und Gefrierschrank Kissmann KB130ENI |
Frischwasser | ~300L frostgeschützt |
Abwasser | ~80L Abwasser + 50L Urin, frostgeschützt |
Gas | Gasfrei |
Bordbatterie | 2x 330Ah - Lithium = 660Ah |
Energiequellen | Solar 4x 100Wp + Ladebooster 12V/90Ah + 230V Einspeisung |
Fenster | Outbound Echtglasfenster |
Türen und Klappen | Woelcke |
Preis | auf Anfrage |
|
|