Mercedes Vario 818 - Fahrgestell + Allrad 4x4

Hubraum:  -

Kraftstoff:  270 ltr Diesel

Leistung:  130 KW

Länge:  6.800 mm

Breite:  2.400 mm

Höhe:  3.490 mm

Leergewicht:  6.480 Kg

Zuladung:  1.010 Kg

zGG:  7.490 Kg

Reisefertig inkl. Füllstoffe und Fahrer

Vorbehaltlich Druckfehler und Irrtümer.

(Leergewicht inkl. gefüllten Dieseltanks, Wassertank, Gasvorrat und Fahrer ~75 kg)

Mercedes Vario 818 - Fahrgestell + Allrad 4x4

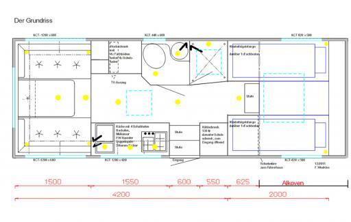
Radstand

4.250 mm

Bauweise

GFK-Verbundplatten
vollisoliert - kältebrückenfrei - wintertauglich

Sitzplätze

2

Betten

2x 2000 x 800 mm (Alkoven)

Heizung

Warmwasserheizung ALDE - Gasbetrieben mit integriertem Boiler

Boiler

Siehe Heizung

Kühlschrank

130 ltr Kompressorkühlschrank mit Kältespeicher

Frischwasser

~300 ltr frostgeschützt
zzgl. ~100 ltr sep. Trinkwassertank

Abwasser

~150 ltr frostgeschützt

Gas

66 kg Gastanks

Bordbatterie

5x 75 Ah - wartungsfrei = Optima YTS 5,5

Energiequellen

Solar 3x 110 Wp = 330 Wp + Trennrelais + 230V Einspeisung

Fenster

KCT – Doppelechtglasfenster mit Kombirollo`s

Türen und Klappen

Woelcke