Iveco Daily 4x4
- Expeditionsmobile

Hubraum: 2.998 ccm | Kraftstoff: 270 ltr Diesel | Leistung: 176 PS |
Länge: 6.350 mm | Breite: 2.120 mm | Höhe: 3.580 mm |
Leergewicht: 4.980 Kg | Zuladung: 520 Kg | zGG: 5.500 Kg |
Reisefertig inkl. Füllstoffe und Fahrer Vorbehaltlich Druckfehler und Irrtümer. |
Iveco Daily 4x4
Bauweise | GFK-Verbundplatten |
Sitzplätze | 2 |
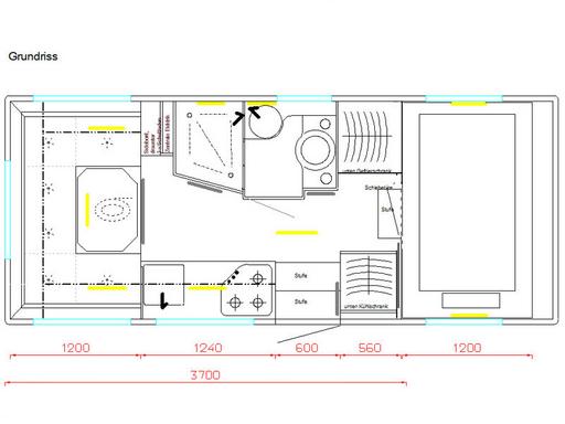
Betten | 1x 1900x1400 mm (UmbauSitzdinette) |
Heizung | Dieselwarmwasserheizung 10 KW mit Anschluß an Motorkühlwasserkreislauf |
Boiler | Bootsboiler 15 ltr |
Kühlschrank | 115 ltr Kompressorkühlschrank |
Frischwasser | ~400 ltr |
Abwasser | ~200 ltr |
Fäkaltank | ~200 ltr |
Gas | 2x 11kg |
Bordbatterie | 3x 220 Ah – AGM-wartungsfrei |
Energiequellen | 3x 80W Solar, Dieselgenerator TEC 30, Trennrelais Starter-Bordbatterie, 230V Einspeisung - Ladegerät/Wechselrichter 200 Ah |
Fenster | Doppelacrylglasfenster mit integr. Kombirollo`s |
Türen und Klappen | Woelcke - 3-fach-Verriegelung |
|