MB 914 AK - "Mathilda"
- Expeditionsmobile
Hubraum: 4.165 ccm | Kraftstoff: 100 ltr Diesel | Leistung: 97 KW |
Länge: 6.850 mm | Breite: 2.300 mm | Höhe: 3.490 mm |
Leergewicht: 6.620 Kg | Zuladung: 880 Kg | zGG: 7.500 Kg |
| Reisefertig inkl. Füllstoffe und Fahrer Vorbehaltlich Druckfehler und Irrtümer. |
MB 914 AK - "Mathilda"
Bauweise | GFK-Verbundplatten |
Sitzplätze | 5 |
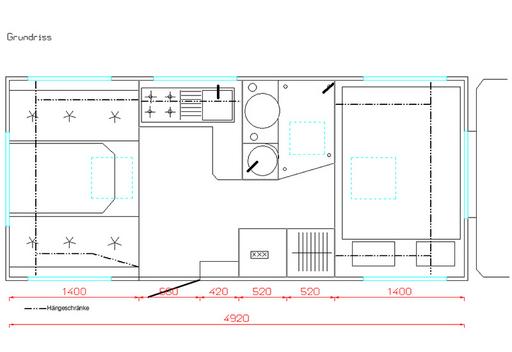
Betten | 1x 2000 x 1400 mm (Umbau Sitzdinette) |
Heizung | Truma C 6002 - Gebläsezentralheizung mit integr. 11 ltr Boiler |
Boiler | Siehe Heizung |
Kühlschrank | 75 ltr Kompressorkühlschrank mit Kältespeicher |
Frischwasser | ~330 ltr |
Abwasser | ~65 ltr |
Gas | 36 kg + 2x 11 kg Gasflaschen |
Bordbatterie | 3x 115Ah - wartungsfrei = 345 Ah |
Energiequellen | 4x 110W Solar + Generator + Trennrelais + 230V Einspeisung |
Fenster | Doppelacrylglasfenster mit integr. Kombirollo`s |
Türen und Klappen | Woelcke |
|
|
