Mercedes Benz 917 AK - 4x4
- Expeditionsmobile

Hubraum: 5.958 ccm | Kraftstoff: 100 ltr Diesel | Leistung: 125 KW |
Länge: 6.950 mm | Breite: 2.400 mm | Höhe: 3.490 mm |
Leergewicht: 8.070 Kg | Zuladung: 1.230 Kg | zGG: 9.300 Kg |
Reisefertig inkl. Füllstoffe und Fahrer Vorbehaltlich Druckfehler und Irrtümer. |
Mercedes Benz 917 AK - 4x4
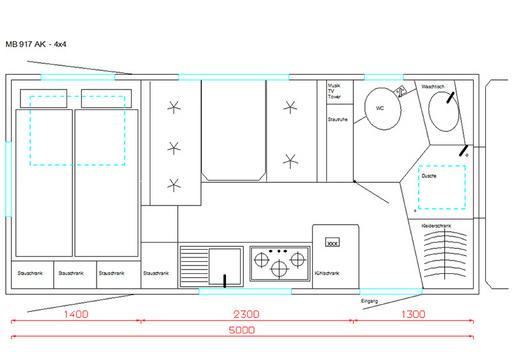
Bauweise | GFK-Verbundplatten |
Sitzplätze | 2 |
Betten | 1x 2000 x 1400 mm (Doppelbett) |
Heizung | 10 KW - Dieselwarmwasserheizung mit Motorkühlwasseranschluß |
Boiler | 15 ltr Boiler |
Kühlschrank | 50 ltr Kompressorkühlschrank mit Kältespeicher |
Frischwasser | ~400 ltr frostgeschützt |
Abwasser | 1x ~80 ltr Küche |
Fäkaltank | 1x ~80 ltr frostgeschützt |
Gas | 2x 11 kg Gasflaschen |
Bordbatterie | 4x 100Ah - wartungsfrei = 400 Ah |
Energiequellen | 2x 110W Solar + Trennrelais + 230V Einspeisung |
Fenster | KCT-Echtglasfenster mit Kombirollo's |
Türen und Klappen | Woelcke |
|